Properties

For Rent
$2,300
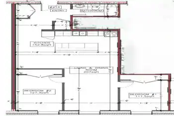
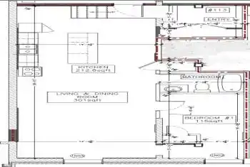
60 JARVIS Street, Fort Erie, Ontario L2A 2S4
726 Listings