Properties

For Sale
$585,000
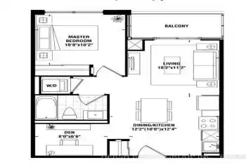
45 Silver Springs Boulevard Unit# 109, Toronto E05, Ontario M1V 1R2
  • 3Beds
  • 2Baths
509 Listings